Na sprzedaż zabytkowy dom o niezwykłej architekturze i historii, położony w samym sercu malowniczych Puław.
Podstawowe informacje:
- powierzchnia działki: 2046 m2
- powierzchnia całkowita domu: 133 m2
- powierzchnia użytkowa: 110 m2
- rok budowy: 1936 rok
- materiał: cegła
- pokrycie dachu: dachówka
- garaż
- piwnica
- poddasze
- droga dojazdowa (kostka)
- ogrodzenie metalowe
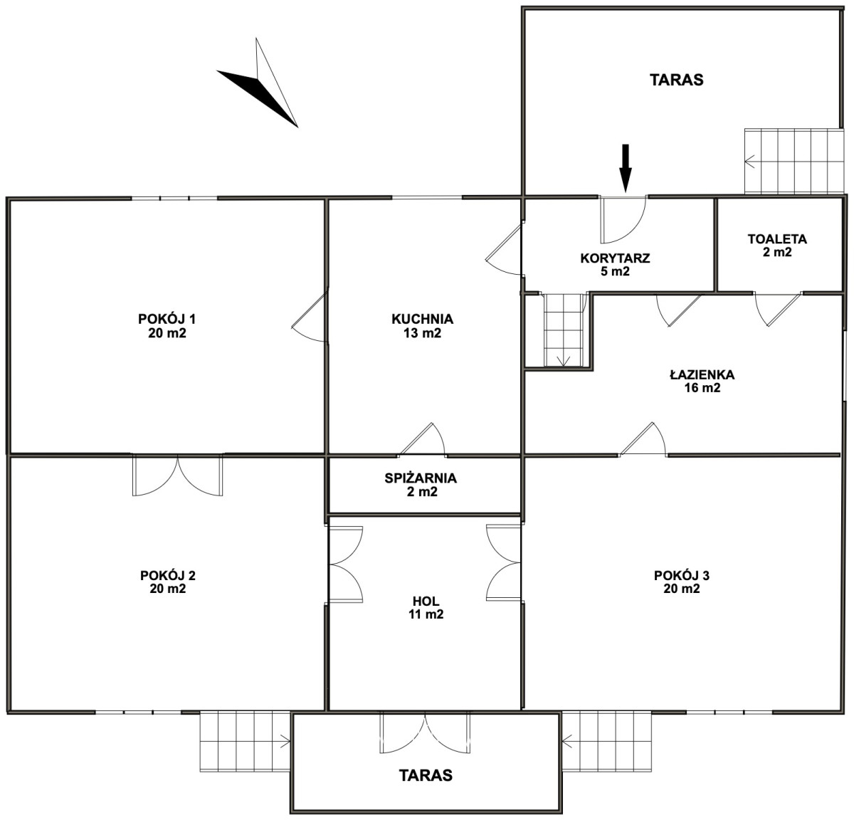
- 3 pokoje mieszkalne, kuchnia, łazienka
- kominek z instalacją do ogrzewania wszystkich pomieszczeń
- 2 tarasy
- 2 pomieszczenia gospodarcze na działce
Cena: 1.099.000 zł
Ta wyjątkowa nieruchomość, o powierzchni całkowitej 133m² stanowi doskonałą okazję dla osób, które cenią sobie styl i elegancję dawnych epok.
Dom jest usytuowany na dużej, pięknej działce o powierzchni 2046 m², co daje przyszłemu właścicielowi wiele możliwości aranżacyjnych.
Dodatkowym atutem tej nieruchomości jest możliwość wytyczenia drogi wewnętrznej i wydzielenia dodatkowej działki. Taka opcja otwiera przed nowym właścicielem szerokie perspektywy - do dalszego rozwoju nieruchomości, po potencjalną sprzedaż wydzielonej części działki, co znacząco podnosi wartość całej nieruchomości.
Wnętrze domu wymaga adaptacji według własnych potrzeb, co pozwala na stworzenie idealnej przestrzeni do życia, zgodnej z własnymi upodobaniami.
Nieruchomość znajduje się w wyjątkowo korzystnej lokalizacji - w bezpośrednim sąsiedztwie znajdują się najważniejsze punkty kulturalne i historyczne Puław, a także liczne sklepy, restauracje i tereny rekreacyjne. Dogodny dojazd oraz bliskość głównych miejsc komunikacyjnych sprawiają, że jest to idealne miejsce zarówno do zamieszkania, jak i prowadzenia działalności gospodarczej.
Zapraszam do kontaktu, aby poznać więcej szczegółów i umówić się na prezentację tej wyjątkowej posiadłości.
Szybki kontakt: 780-734-389
"Informacje zawarte w niniejszej ofercie nie są prawnie wiążące i nie stanowią oferty handlowej, w tym w rozumieniu art.. 66 par 1 kodeksu cywilnego."