2 pokoje | Białołęka | Aluzyjna | zielona okolica

Mieszkanie na sprzedaż
569 000,00 PLN , Pow. 50,40 m2
Typ nieruchomości:
Mieszkanie
Powierzchnia:
50,40 m2
Typ transakcji:
sprzedaż
Liczba pokoi:
2
Lokalizacja:
Warszawa Białołęka , Aluzyjna
Rok budowy:
2001
Piętro:
4 na 10
Numer oferty:
PI166237
Cena za m2:
11 289,68 PLN
2 pokoje | Białołęka | Aluzyjna | zielona okolica
Przed prezentacją zapoznaj się ze spacerem wirtualnym.

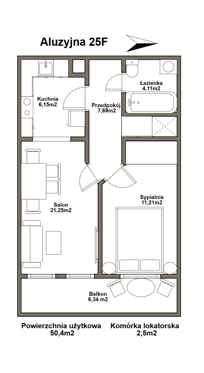
Warszawa, Białołęka, ul. Aluzyjna 25F
Dwupokojowe mieszkanie
Metraż: 50,4 m²
Piętro: 4 z 10
Pełna własność - możliwość zakupu na kredyt
Cena: 569 000 zł (11 290 zł/m²)
Czynsz administracyjny: 572 zł
Miejsce parkingowe: jest dodatkowo płatne 23 000zł

Informacje o budynku:
Mieszkanie znajduje się na 4. piętrze w bloku z 2001 roku, wyposażonym w nowoczesną windę.
Budynek jest w bardzo dobrym stanie technicznym, a otoczenie ciche i zielone. Mieszkanie znajduje się blisko windy.
Budynek znajduje się na terenie zamkniętym, a przy wjeździe znajduje się ochrona.

Rozkład mieszkania:
Pokój dzienny - z wyjściem na balkon i widokiem na patio
Sypialnia - ustawna, z możliwością aranżacji pod indywidualne potrzeby
Kuchnia - osobna z drzwiami z korytarza i przesuwne drzwi do salonu
Łazienka - wyposażona w wannę
Przedpokój - z dwoma wnękami
Balkon - przestronny, z miejscem na stolik z krzesłami
Komórka lokatorska - obligatoryjna, dodatkowo płatna 20 tyś złotych

Najważniejsze informacje dotyczące nieruchomości:
-Funkcjonalny układ - dwa pokoje i oddzielna kuchnia
-Ekspozycja okien wschodnia
-Balkon z widokiem na zieleń i patio
-Komórka lokatorska dodatkowo płatna 20 tyś złotych
-Ogrzewanie miejskie

Lokalizacja i komunikacja:
Białołęka - spokojna część dzielnicy z rozbudowaną infrastrukturą.
Dojazd do centrum - ok. 20-25 minut samochodem
Dojazd do centrum komunikacją miejską 45 minut.
W pobliżu przystanki autobusowe
Dobry dojazd do trasy S8 i mostu Marii Skłodowskiej-Curie
Blisko ścieżki rowerowe i tereny spacerowe

Usługi i rekreacja w okolicy:
Sklepy spożywcze, punkty usługowe, restauracje
Szkoły, przedszkola i żłobki w pobliżu
Przychodnia, apteka i inne punkty medyczne
Galeria Północna - centrum handlowe z ofertą gastronomiczną i rozrywkową
Liczne place zabaw i boiska
Tereny zielone sprzyjające spacerom i aktywnemu wypoczynkowi

Dostępność:
Mieszkanie dostępne od zaraz.

Zapraszam do kontaktu - to propozycja dla osób szukających przestronnego, dobrze skomunikowanego mieszkania na Białołęce, gotowego do zamieszkania.

Informacje zawarte w ogłoszeniu nie stanowią oferty handlowej w rozumieniu art. 66 § 1 Kodeksu cywilnego.
Nieprawidłowy adres E-mail